Ältestes Fachwerkhaus im Erftkreis

in Kirchherten
In Kirchherten steht ein Fachwerkhaus, das vermutlich das älteste bewohnte Fachwerkhaus im Erftkreis ist. Eine Inschrift datiert das Haus auf das Jahr 1558, also kurz nach dem Ende des Mittelalters. Die wechselvolle Geschichte scheint ihm bis heute kaum etwas anhaben zu können.

Heinz-Toni Dolfen


Als es erbaut wurde, gehörte das Gebiet zum Heiligen Römischen Reich, das im selben Jahr, 1558, einen neuen Kaiser bekam: Ferdinand I. aus dem Geschlecht der Habsburger. Der Kölner Krieg, der auch in unserer Region Leid und Zerstörung gebracht hatte, war gerade zu Ende gegangen. Es war eine Zeit des Umbruchs, denn unter dem Druck der Stände verstärkten die Landesherren den Auf- und Ausbau ihrer Verwaltung mit einer ständigen Zentralverwaltung. Ziel war es, das Leben der Untertanen durch Landes- und Polizeiordnungen zu regeln und auch zu disziplinieren.

Kirchherten Zaunstraße 99

Mitten in dieser Zeit entschloss sich der uns unbekannte Erbauer, an der heutigen Stelle der Zaunstraße 99 ein Fachwerkhaus zu errichten. Die Fachwerkbauweise ist eine uralte, seit Jahrtausenden bewährte Technik, die an die Bauleute nicht allzu hohe Anforderungen stellte, so dass sie auch im ländlichen Raum ohne Baumeister angewandt werden konnte. Es gab zwar immer mehr Steinbauten, aber sie waren teuer, erforderten Fachleute und waren daher meist wohlhabenden Bauherren vorbehalten. Unser Hausbesitzer war nicht arm, aber wohl auch nicht reich genug, um sich ein Steinhaus zu bauen, vielleicht gab es auch keinen Baumeister, so dass das Gebäude von den Bewohnern selbst errichtet wurde.

Der Bau eines Gebäudes im 16. Jahrhundert war in etwa so komplex wie heute. Zunächst musste man sich um den Erwerb eines Grundstücks bemühen, wenn man kein eigenes besaß. Im ländlichen Raum war für den Erwerb eines Grundstücks in der Regel die Zustimmung des örtlichen Grundherrn erforderlich, die - wie heute auch - notariell beurkundet werden musste. Auch der Bau eines Hauses bedurfte je nach örtlichem Brauch der Zustimmung des Grundherrn oder des lokalen Herrschers. Ein Baumeister war im Prinzip nicht nötig und die Statik des Hauses wurde nach Erfahrung und Gefühl gemacht. Waren diese Hürden genommen, konnte mit dem Bau begonnen werden.

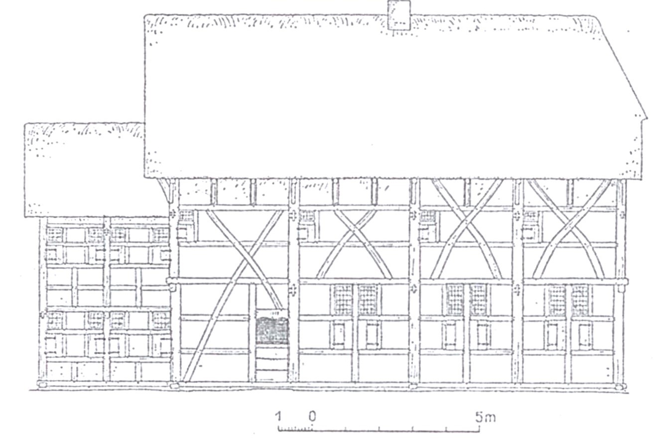
Rekonstruktion Fassade

Das Fachwerkhaus in Kirchherten besteht aus einem zweigeschossigen Hauptgebäude, das später durch einen ebenfalls in Fachwerkbauweise errichteten Anbau erweitert wurde. Die tragende Grundkonstruktion bilden fünf giebelhohe Holzstützen aus Eiche, auch Ständer genannt. Diese Ständerbauweise hat den Vorteil einer besseren Lastabtragung und ermöglicht es einfacher mehrgeschossig zu bauen. Die ursprüngliche Konstruktion ist heute nicht mehr sichtbar sondern nur noch auf einer älteren Rekonstruktionszeichnung zu erkennen. Die Eingangstür, die heute am zweiten Ständer rechts angeordnet ist, befand sich früher vermutlich auf der linken Seite. Dort ist noch der ursprüngliche Türbogen mit der Jahreszahl 1558 zu erkennen, der jedoch ansonsten auch im Zuge einer Erneuerung der Tür versetzt worden könnte.

Eingang mit Jahreszahl


Das Gebäude steht nun seit 466 Jahren, ist also solide gebaut und wurde von den Eigentümern immer gepflegt. Natürlich gab es viele Veränderungen am Gebäude, die den jeweiligen persönlichen Verhältnissen angepasst wurden, so dass das Ursprüngliche verloren ging. Es überstand auch zahlreiche Konflikte im Laufe der Zeit, wie den Dreißigjährigen Krieg (1618-1648), den Pfälzischen Erbfolgekrieg (1688-1697), den Spanischen Erbfolgekrieg (1701-1714), die französische Besatzung ab 1794, den Ersten und Zweiten Weltkrieg. Alle Konflikte betrafen das Rheinland und hinterließen Spuren in unserer Region. Wie viele und welche Schäden das Gebäude in dieser Zeit erlitten hat, ist nicht bekannt. Es ist ein Glücksfall, dass die Holzbauten aus dieser Zeit, die auch leicht in Brand gerieten, heute noch zu sehen sind.

Möglicherweise wurde das Gebäude ursprünglich landwirtschaftlich genutzt, mit verschiedenen angebauten Stallungen, wie es Heinz-Gerd Schmitz in einem Artikel beschrieben hat. Das lässt sich nicht mehr nachweisen, wäre aber in einer ländlichen Gegend naheliegend. Er schreibt weiter, dass das Gebäude als Gasthaus, Metzgerei und Blumenladen genutzt wurde. Die Raumaufteilung nach einer Rekonstruktionszeichnung ist im Innern einfach, zur Straße hin zwei große Räume, zum Garten hin zwei schmale Kammern. In einem der größeren Räume befand sich eine Feuerstelle mit Kamin. Die Lage der Fenster sind wahrscheinlich mehrfach verändert worden und entsprechen heute nicht mehr dem ursprünglichen Plan. Man kann sich gut vorstellen, dass sie anfangs nicht verglast, sondern mit Leinen, Fellen oder Holz verschlossen waren, da Glas sehr teuer war.

Seit 1992 steht das Gebäude unter Denkmalschutz. Im Erftkreis gibt es nur wenige gut erhaltene Fachwerkhäuser aus dieser Zeit umso wertvoller ist der Erhalt dieses Gebäudes.

Rekonstruktion Grundriss



Literatur:
LVR; Epochen und Themen
Kretschmar, Frank; Mühlen, Bauten und versteckte Winkel im Rhein-Erft-Kreis
Rhein-Erft-Kreis, Archiv
Stadt Bedburg, Denkmalamt
Schmitz, Heinz-Gerd: Tag des offenen Denkmals 1977 in Kirchherten, Verein für Geschichte und Heimatkunde Bedburg e.V.


Fotos:
Dolfen, Heinz-Toni
Verein für Geschichte und Heimatkunde Bedburg e.V.
Titelbild: Aufnahme des Objekts etwa um 1950.
© 2024